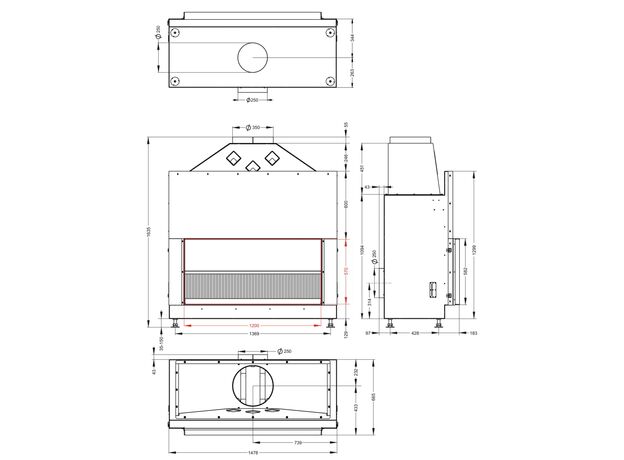
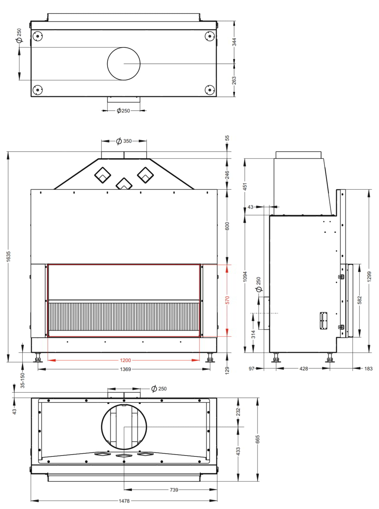
Открытая каминная топка Астов Astov с сеткой О1С 120\57
Характеристики
Общие
Производитель:
Страна-производитель:
Россия
Остекление:
Открытая топка
Материал корпуса:
Материал топки:
- Шамот
Конструкция топки:
Стекло с подъемом вверх:
Да
Размеры
Диаметр дымохода:
350 мм
Общая ширина:
1478 мм
Общая глубина:
708 мм
Общая высота:
1635 мм
Общий вес:
580 кг
Высота рамки:
570 мм
Ширина рамки:
1200 мм
Производительность
Использование для отопления:
Видео галерея












