Открытая каминная топка Астов Astov с сеткой О3С 75\50
Характеристики
Общие
Производитель:
Страна-производитель:
Россия
Остекление:
Открытая топка
Материал корпуса:
Материал топки:
- Шамот
Конструкция топки:
Стекло с подъемом вверх:
Да
Боковое стекло:
Трёхсторонняя
Размеры
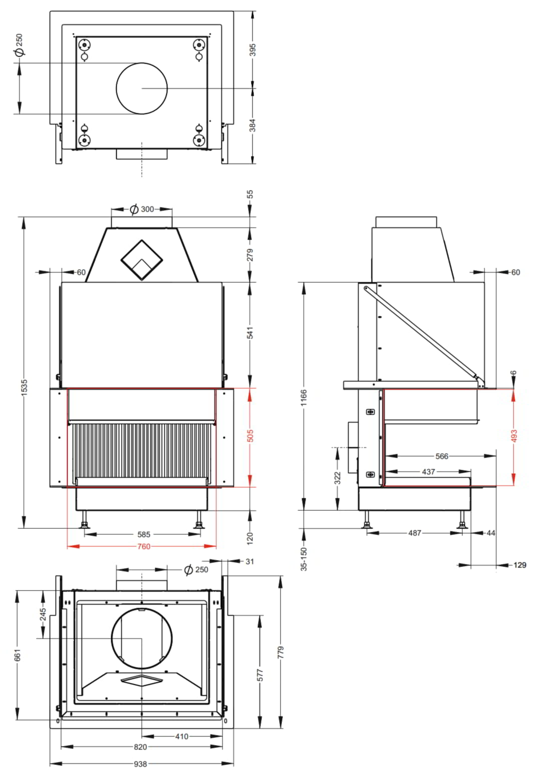
Диаметр дымохода:
300 мм
Общая ширина:
938 мм
Общая глубина:
779 мм
Общая высота:
1535 мм
Общий вес:
323 кг
Высота рамки:
505 мм
Ширина рамки:
760 мм
Производительность
Использование для отопления:
Видео галерея












