Каминная топка Brunner Architecture 45/82/48 Left
Описание
Характеристики
Общие
Производитель:
Страна-производитель:
Германия
Остекление:
Материал корпуса:
Материал топки:
- Шамот
Конструкция топки:
Стекло с подъемом вверх:
Да
Боковое стекло:
Слева
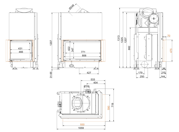
Размеры
Диаметр дымохода:
250 мм
Общая ширина:
1037 мм
Общая глубина:
697 мм
Общая высота:
1313 мм
Общий вес:
238 кг
Высота рамки:
467 мм
Ширина рамки:
807 мм
Производительность
Мощность:
12 кВт
КПД:
80%
Площадь отопления:
120 м²
Объем отопления:
300 м³
Использование для отопления:
Видео галерея












