Каминная топка Romotop Heat C 3G L 80.52.31.21
Описание
Характеристики
Общие
Производитель:
Страна-производитель:
Чехия
Остекление:
Материал корпуса:
Материал топки:
- Вермикулит
Конструкция топки:
Стекло с подъемом вверх:
Да
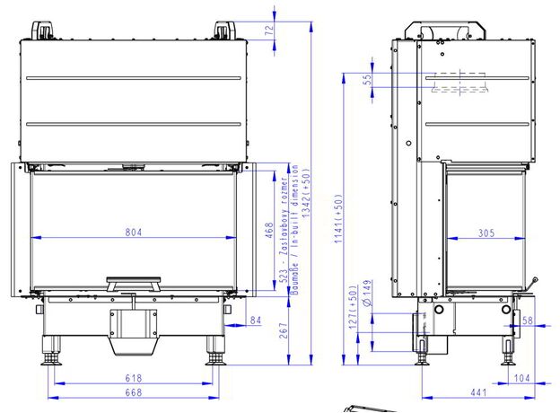
Размеры
Диаметр дымохода:
200 мм
Общая ширина:
957 мм
Общая глубина:
560 мм
Общая высота:
1342 мм
Общий вес:
245 кг
Высота рамки:
468 мм
Ширина рамки:
804 мм
Производительность
Мощность:
9 кВт
КПД:
80,4%
Площадь отопления:
90 м²
Объем отопления:
225 м³
Использование для отопления:
Видео галерея












