Каминная топка Spartherm Arte 3RL80H
Описание
Характеристики
Общие
Производитель:
Страна-производитель:
Германия
Остекление:
Материал корпуса:
Материал топки:
- Керамика
Конструкция топки:
Размеры
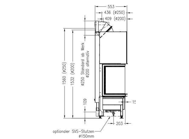
Диаметр дымохода:
250 мм
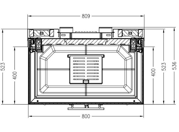
Общая ширина:
825 мм
Общая глубина:
571 мм
Общая высота:
1626 мм
Общий вес:
337 кг
Ширина рамки:
806 мм
Производительность
Мощность:
11,4 кВт
КПД:
80%
Площадь отопления:
120 м²
Объем отопления:
300 м³
Использование для отопления:
Видео галерея












