Печь-камин Romotop Laredo Akum камень
Описание
Характеристики
Общие
Производитель:
Страна-производитель:
Чехия
Материал отделки:
Натуральный камень
Материал топки:
- Керамика
Тип печи:
Цвет:
Камень
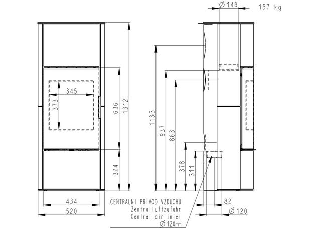
Размеры
Диаметр дымохода:
150 мм
Общая ширина:
528 мм
Общая глубина:
398 мм
Общая высота:
1312 мм
Общий вес:
157 кг
Производительность
Мощность:
4,3 кВт
КПД:
80,5%
Площадь отопления:
50 м²
Объем отопления:
125 м³
Использование для отопления:
Видео галерея












